Cuando en VisualARQ elegimos proyectos arquitectónicos para dar a conocer ejemplos concretos del potencial del software de arquitectura, solemos decantarnos por los más complejos en cuanto a tamaño, originalidad, materiales o uso. Es sencillo y cómodo, dado que queremos presentar el amplio abanico de opciones que ofrece Rhino y para nosotros, las edificaciones de gran calibre nos resultan ideales para ello.
Sin embargo, no sólo los grandes estudios de arquitectura emplean VisualARQ o Rhino en general. La inmensa mayoría de los arquitectos trabajan en condiciones muy distintas. Sin descomunales presupuestos ni posibilidades de lucimiento internacional.
Aun careciendo de esos incentivos, deben realizar trabajos que demuestren su dominio técnico y sus dotes creativas. Deben satisfacer al cliente, cumplir plazos y ceñirse al presupuesto. Y deben ser excelentes en su ejecución.

VisualARQ, el software de forma libre en 3D, analiza el diseño arquitectónico del museo. Vía Brooks+Scarpa
Un edificio bien construido no nos lleva a reflexionar sobre lo acertados que son sus detalles, el que realmente está bien diseñado es aquel sobre el que no nos hacemos preguntas porque lo percibimos como natural, las elecciones que se hicieron fueron las adecuadas, no se nos ocurre que pudieron existir otras.
Ese es el motivo por el que en estas líneas, también tienen cabida los proyectos que no tienen la envergadura de los grandes equipamientos pero son buena arquitectura. Porque también existe la excelencia más allá del tamaño. La arquitectura de la precisión quirúrgica.
La obra que hoy presentamos ha recibido numerosos premios. Por su diseño, el AIA Design Awards. Por su trabajo de conservación y readaptación, el AIA North Carolina Tower Awards y el Carraway Honor Award of Merit de North Carolina. Por su contribución al carácter de la ciudad, el Sir Walter Raleigh Walter Aw1ard for Community Appearance. Y, finalmente, los premios de AIA-Los Angeles Merit Award, AIA-South Atlantic Region Merit Award, AIA-North Carolina Merit Award y Downtown Raleigh Alliance Imprint Award.
Hoy viajamos a Estados Unidos y nos detenemos en Raleigh, la capital del estado de Carolina del Norte. Tiene unos 423.000 habitantes y muchos proyectos para dinamizar su vida económica y cultural. La ciudad contaba ya con equipamientos culturales y museos pero decidió dedicar un espacio al arte contemporáneo. No con la intención de coleccionar piezas sino de mostrarlas y completar así la oferta artística, tratándose de un proyecto de pequeñas dimensiones.

Los tradicionales porches sureños se reinterpretan de forma contemporánea. Vía Brooks+Scarpa
En el centro de Raleigh se encuentra el Depot District, un conjunto de antiguos almacenes que ocupan cuatro bloques, que es un emplazamiento histórico a mantener y revitalizar para que se convierta en una zona de interés actual con nuevos negocios.
Por ello, se eligió para ubicar el nuevo pequeño museo de arte contemporáneo. El edificio elegido fue uno de dos pisos de ladrillo rojo que había sido construido en 1910 con una sola planta. Alrededor de 1925 fue ampliado construyendo otra planta sobre la inicial. Desde entonces había sido utilizado por diferentes empresas, manteniéndose en uso hasta prácticamente la actualidad.
La superficie, unos 2.000 m², la ubicación y el exterior eran adecuados pero tenía un ingrediente envenenado: un revestimiento de amianto.
El diseño de
Brooks + Scarpa, con la colaboración de la firma local
Clearscapes como
Architects of Record ha ofrecido como resultado la rehabilitación de un edificio y, por consiguiente, de una zona urbana. Han preservado la memoria histórica del lugar y le han dotado de utilidad para la comunidad.

La estructura metálica que soporta la cubierta de policarbonato. Vía Brooks+Scarpa
La actuación incluyó dos aspectos: rehabilitación del edificio original y adición de una zona de entrada protegida por un moderno porche.
El primer paso fue despojar el edificio de añadidos y sanear y vaciar su interior. Así se dejaron a la vista los materiales originales de ladrillo y metal y se restauraron donde fue necesario. La estructura reunía los rasgos habituales en un almacén: muelles de carga, altos techos, un elevador de carga (que todavía puede verse desde la escalera de acceso al museo) e incluso un ramal ferroviario que llegaba hasta las proximidades de la estación hoy en funcionamiento. Raleigh fue un punto importante en la trama de transporte por tren desde mediados del s. XIX hasta la década de los 50.

Vista del interior del museo de Raleigh
Los altos techos que tan necesarios fueron en el almacén ahora proporcionan un ambiente excelente para el uso público. El espacio diáfano permite contemplar los soportes metálicos y los respiraderos que ahora se utilizan para los conductos de calefacción y aire acondicionado, así como la ventana en forma de semicírculo en la parte superior.

Un puente metálico y una rampa permiten transitar entre las diferentes zonas. Vía Brooks+Scarpa
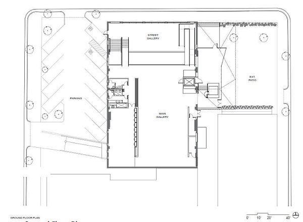
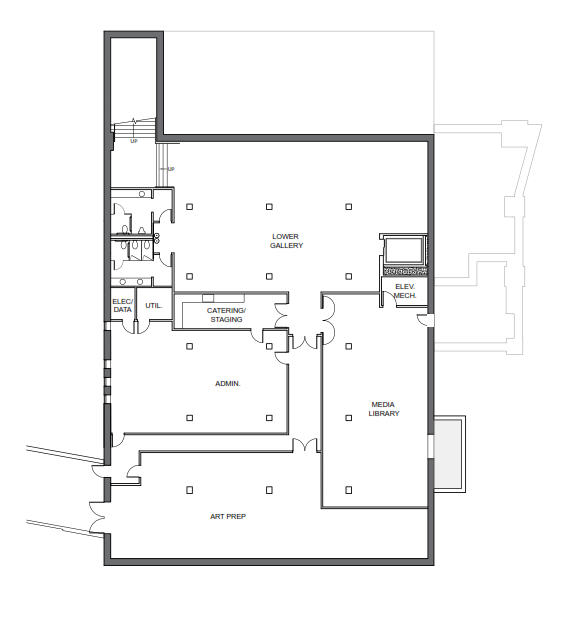
Ello permite que ambas queden integradas en un solo conjunto y que se puedan observar los pilares cuadrados de ladrillo de la planta inferior, donde se hallan las zonas auxiliares y de almacenaje así como las oficinas, separadas por muros bajos para mantener el espacio lo más abierto posible. El resto lo ocupa una pequeña zona de exhibición reservada para arte digital.
Físicamente, ambos niveles quedan conectados con un puente metálico, escaleras y un ascensor que ocupa la ubicación del original.

Planos de la distribución. Planta baja. Vía Brooks+Scarpa

Planos de la distribución . Vía Brooks+Scarpa
Se añadió un vestíbulo de 84 m², acristalado y cubierto por una prolongación del porche exterior.
Ese porche es el elemento que más destaca al contemplar el edificio. El hecho de que se prolongue en el interior unifica el conjunto y proporciona fluidez y continuidad entre el pasado y el presente.

VisualARQ presenta una cubierta en cuyo diseño se ha utilizado Rhino. Vía Brooks+Scarpa
Por su original diseño es como una escultura más de las que protegerse bajo su sombra en el jardín exterior. El interior de los porches tradicionales sureños está pintado de color azul celeste y, en un guiño desde la contemporaneidad, los soportes metálicos del porche actual también son de ese color. Ahí acaban las semejanzas ya que el nuevo porche está formado por pliegues que crean diferentes perspectivas para el paseante y recuerdan el origami. La cubierta con diseño de pétalos completan el efecto. Las características de Rhino posibilitan que ese complejo diseño pueda llevarse a cabo con exactitud.

A partir de tres pétalos de diferentes tamaños se obtienen numerosas variaciones. Vía Brooks+Scarpa
La cubierta del porche está decorada con unas perforaciones que dejar pasar la luz en algunos puntos. Se han realizado siguiendo el diseño de unos imaginarios pétalos de diferentes tamaños que no se han repartido aleatoriamente sino de forma que proporcionan más sombra en las zonas que lo precisan.
El material es policarbonato y se combina con una red para evitar que la utilicen los pájaros.

Las perforaciones del porche están cubiertas de red para proteger la cubierta de los pájaros. Vía Brooks+Scarpa
El estudio de Brooks+Scarpa, ahora con sede en Los Ángeles ¿???, había tenido una oficina en Charlotte (así que ya había tenido contacto directo con el espíritu de North Carolina) y ha demostrado saber aprovechar lo mejor de la arquitectura que sigue en pie en el estado.
En su obra, el enfrentamiento entre la solidez del ladrillo y la ligereza de los pliegues del porche se salda con una victoria para ambos. Juntos definen la personalidad de un edificio que, más de un siglo después de su construcción, comienza una etapa.
Con su originalidad y diseño, el moderno porche será un excelente ejemplo de belleza contemporánea que atraerá a los visitantes hacia el interior del museo para que se enfrenten, también ellos sin temor, a la contemplación del arte contemporáneo.
- Fuente: Brooks+Scarpa
- Arquitectos: Brooks+Scarpa. Clearspaces (Architects of Record)
- Superficie: 2.072 m² (84 m² nuevo lobby)
- Ubicación: CAM (Contemporary Art Museum), Raleigh (USA)
- Imágenes: John Edward Linden, Nick Pironio y Lawerence Scarpa, vía Brooks+Scarpa
(Artículo de M.A. Núñez)