文档工具
表格和参数
所有 VisualARQ 对象都有本机信息可列于表格中的本机信息 (例如名称、样式、面积、体积、高度等)。 但是可以为任意类型的对象创建新的参数并列于表格中。
- 新的自定义参数:按文档、VisualARQ 对象样式或对象单独创建新的参数。 可输入自定义参数(数字、文本、布尔…) 并在标记中显示。
- 向几何体提供信息:除了 VisualARQ 对象,新参数的值还可分配到任意一块几何体:点、曲线、曲面、多重曲面、图块、网格。
- 将自定义参数导出至 IFC:分配到几何体的自定义参数及其值可存储在 IFC 文件中。
- 在表格中列出对象信息:创建新的表格样式以量化对象,将对象类型定义至列表并定义表格属性字段(面积、长度、体积、自定义参数等)。 分组对象并显示包含通用参数的对象综合。 (视频)
- 动态表格:表关联到模型:编辑模型时,可以使用更新命令更新表中显示的信息。
- 导出表格:表格创建后可导出为 Excel 和 .csv 格式。
控件、标记和注解
- 创建空间:从内部点(由墙体和/或立柱构成的封闭边界)、曲线或曲面插入控件,并在标签中查看其信息(名称、面积、周长等)。 空间以带有标签和剖面线图案的 2D 形式和带有虚线边缘的 3D 形式显示为体积。
- 设置空间元素:计算空间时,纳入考量范围的将任意几何体元素(曲线、多重曲面和 VisualARQ 对象)转换为实体的命令。
- 标记: (视频)标记命令在各个对象的底部插入标签并显示参考文本。 标记可以根据对象属性显示 VisualARQ 对象的动态信息。 将提供标记形状(矩形、圆形、六边形等)列表,但也可以使用来自图块的新形状。
- 注解:注解对象可以是 2D 符号、文本、动态 2D 几何体或 2D 元素组合。 可从图块或 Grasshopper 定义创建,没有参数化设计限制。
实时矢量输出 2D 绘图
VisualARQ 提供从 3D 图、水平和垂直剖面以 2D 形式打印模型的工具。 (
视频)

这些绘图可通过打印模型空间或页面布局的平面图、剖面图或透视图中的 3D 模型实时生成。 只需要使用隐藏显示模式并实时打印矢量输出即可!
- 平面图:从楼层管理器设置要显示的楼层并打印平面图。
- 剖面图:从剖面管理器中选择剖面线并设置剖面图到视区以打印剖面图和立面图。
- 透视图:将 3D 图放入隐藏显示模式并以矢量输出打印。
绘制 2D 剖面图、立面图和平面图
VisualARQ 提供了由水平和垂直剖面图生成动态 2D 绘图的工具。
生成的 2D 绘图表示投影在平面上的 3D 对象,因此其具有相同的显示和打印属性。 这些绘图关联到 3D 模型,使其可以随时更新。
- 2D 平面图:从特定楼层插入 2D 平面图的命令。 2D 生成几何体显示平面图面积和图深度(都可以编辑)内的可见 3D 对象投影。
- 2D 剖面图:从已选择剖面线插入 2D 剖面图或立面图的命令。 2D 生成几何体显示剖面图面积以及剖面参考文本内的可见 3D 对象投影。
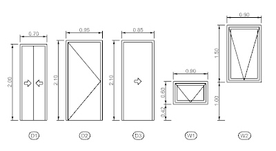
- 开口对象立面图:为模型中所有选定的开口对象(门和窗户)创建 2D 绘图的命令。 在平面图中显示开口对象立面图及其主要尺寸,以及标记其在模型中位置的参考号。
- 对象图层和 2D 属性:2D 剖面图和平面图几何体保留其代表的 3D 几何体的图层、线条粗细、颜色以及其他属性。
- 绘制 2D:“绘制 2D”工具将几何体投影到建筑平面上,以进行 2D 绘图。 与 VisualARQ 剖面和平面图不同,在 3D 模型上进行更改后,绘制 2D 绘图不会更新。
- 导出为 .dwg:这些 2D 绘图可导出为 .dwg 或进行分解,以便与生成线条和剖面线一起使用。
区段属性

剖面属性确定 Rhino 和 VisualARQ 对象的属性(特征),以便显示和打印。 在激活截平面和剖面时,这些剖面属性也适用于剖分的几何体。 它们也会显示在平面图和剖面图中。
- 区段属性:填充颜色、线型、线打印宽度和线打印颜色。 图案类型、比例、角度和颜色。
- 将它们分配到任意类型的几何体:剖面属性可从 Rhino 属性面板的剖面属性图标分配到 Rhino 中的任意几何体(曲面、视图或网格)。 VisualARQ 对象也可从各个对象样式对话框获取样式分配的剖面属性。
- 剪裁状态:剪裁状态可以按对象显示,所以不会被 VisualARQ 剖面、楼层截平面或 Rhino 剪裁平面剖分。
大量的 CAD/绘图工具
Rhino 和 VisualARQ 提供生成 2D 建筑绘图、施工细节和任何类型的注解所需的所有 CAD 和绘图工具。
- 与 2D 几何体一起使用:绘制线、多重线、矩形、多边形、圆形、椭圆形、控制点曲线等… 通过不同的命令进行编辑:圆角、倒角、偏移、延伸、修剪、分割、连接、重建… 可以通过控制点编辑曲线。
- 标注尺寸:提供一些可用于创建尺寸的命令,尺寸由管理当前模型的字体、数字格式、大小、箭头样式和对齐设置的样式定义。
- 剖面线:剖面线图案创建自边界曲线。
- 文本:该文本命令可创建能够通过编辑框快速编辑的注解文本。
- 引线、远点、注释:其他注解可用于补充项目文档。
- 线型:注解线型管理当前模型的线型图案。 由定义比例、单位或图案的样式管理并且可导入至新文档。